D VILLAS

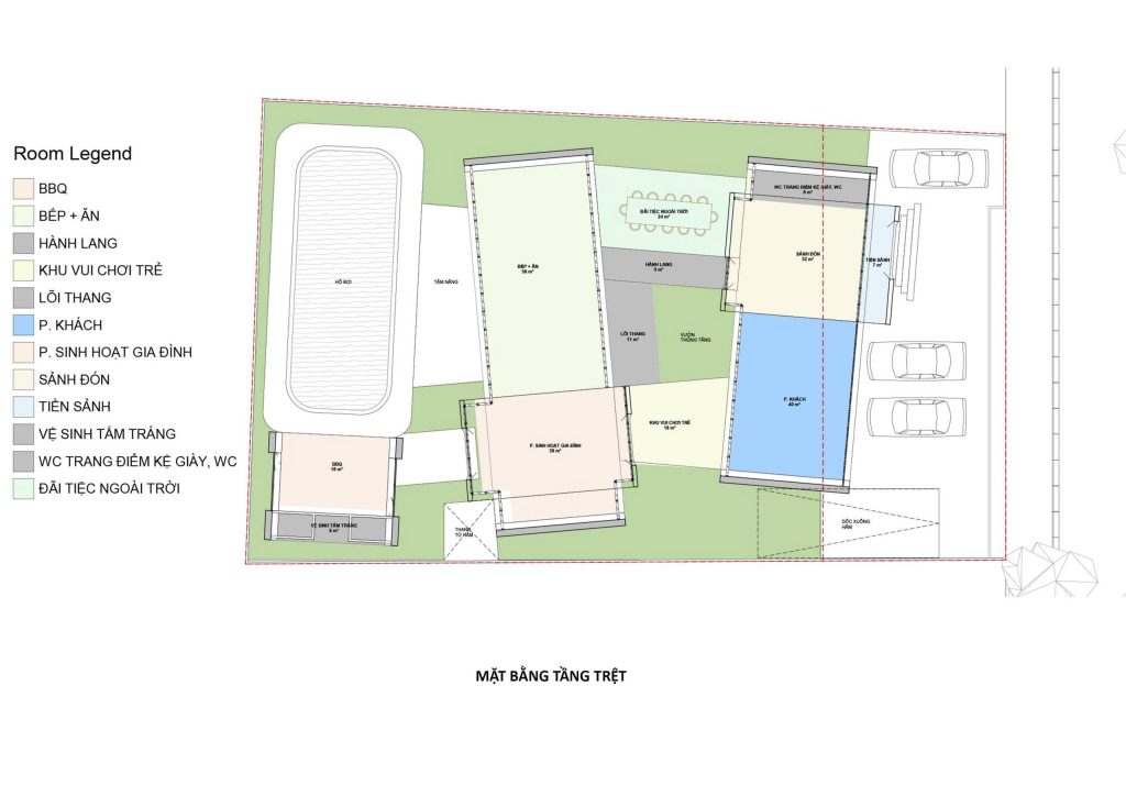
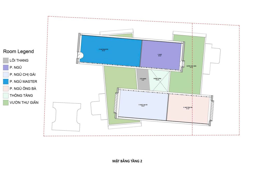
Từ mục tiêu, ý nghĩa công trình, kiến trúc sư đã khảo sát hiện trạng, phác hoạ và lên ý tưởng. Một công trình hiện đại hướng đến tương lai, ưu tiên không gian xanh kết nối các thành viên trong gia đình. Tất cả các tầng lầu đều khoảng sân hiên đón nắng gió tự nhiên. Tối giản đường nét, lấy con nguời làm trung tâm.

___

DATE:
1/2024

CATEGORIES:
Villas

CLIENT:
Mr. Duong

LOCATION:
Ho Chi Minh